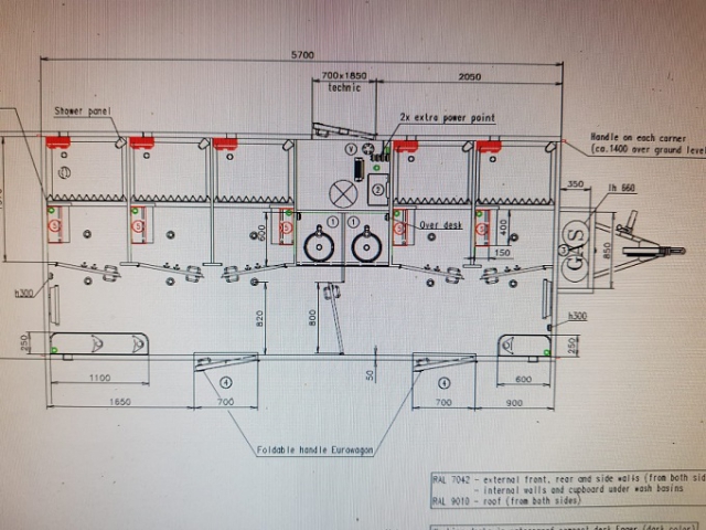
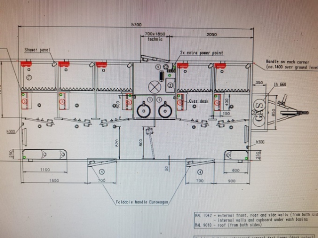
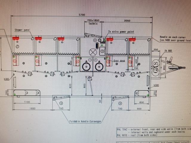
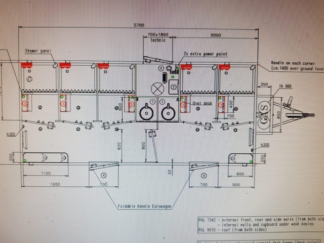
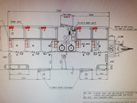
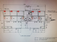
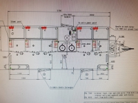
Douchewagen 5 persoons
Deze douchewagen kan opgedeelt worden in 2 aparte ruimtes
1 zijde 2 douches
1 zijde 3 douches
Ook is het mogelijk deze wagen als 1 gehele wagen te gebruiken deur tussendeur te openen.
Wagen is voorzien van 5 aparte ruimtes met douchebak, en aparte omkleed ruimte
Wagen is voorzien van een gas geiser.
Er dienen voor gebruik 2 gasflessen aangesloten te worden.
Foto's vanaf eind maart online, wel kunnen wij u een tekening toe sturen, deze kunt u per mail opvragen



2 haken gemonteerd op de deur om tassen of jassen aan op te hangen.



Douchruimte is voorzien van:
* Bankje
* Plankje op spullen op te leggen
* Spiegel
* Rekje
* Afvoerputje

Handwasplekken zijn voorzien van spiegel, warm/koud water en stopcontact.

De gezamelijke ruimtes zijn voorzien van kachel en bankje.

De wagen is voorzien van een tussendeur die afgesloten kan worden.
Zo kan de wagen gescheiden worden in een 2 en 3 gedeelte of als 5 persoons wagen




Harskamperweg 82-84
3774 JR Kootwijkerbroek
verhuur@hadoverhuur.nl
Tel: 0318 456 497
GSM: 06 549 548 22
WhatsApp: 06-10874794